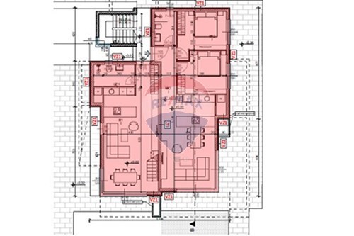
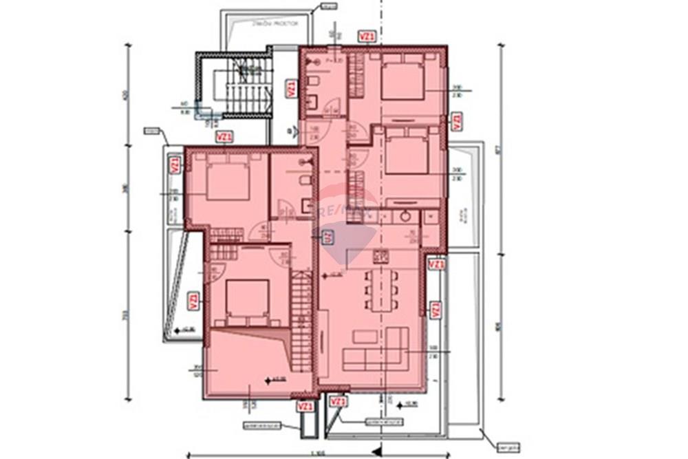
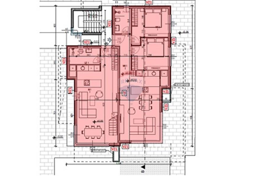
U Njivicama na otoku Krku prodaje se dvoetažni stan u modernoj novogradnji, ukupne površine 112 m², s vlastitim bazenom i prostranom okućnicom od 73 m².
Stan se prostire na dvije etaže u prizemlju se nalazi ulazni hodnik, kupaonica te kuhinja s blagovaonicom i dnevnim boravkom iz kojeg se izlazi na terasu i okućnicu s bazenom, dok su na katu smještene dvije spavaće sobe, dodatna kupaonica i hodnik.
Pri gradnji i opremanju korišteni su vrhunski materijali aluminijska stolarija, podne obloge i sanitarije prve klase. Predviđeno je podno grijanje putem dizalice topline i hlađenje fan-coil sustavom, a sve je objedinjeno u smart home sustavu koji omogućuje napredno upravljanje uređajima, bolju energetsku učinkovitost i veću sigurnost. Stanu pripadaju dva parkirna mjesta u garaži te spremište.
Nekretnina se nalazi u mirnoj ulici, okruženoj obiteljskim kućama i luksuznim novogradnjama, uz zeleni pojas, što pruža idealno okruženje i za odmor i za cjelogodišnji boravak. Uređene plaže na Kijcu udaljene su svega oko 300 metara, odnosno nekoliko minuta hoda. Završetak radova planiran je za kolovoz 2025. godine.