MANDRE PRVI RED DO MORA!
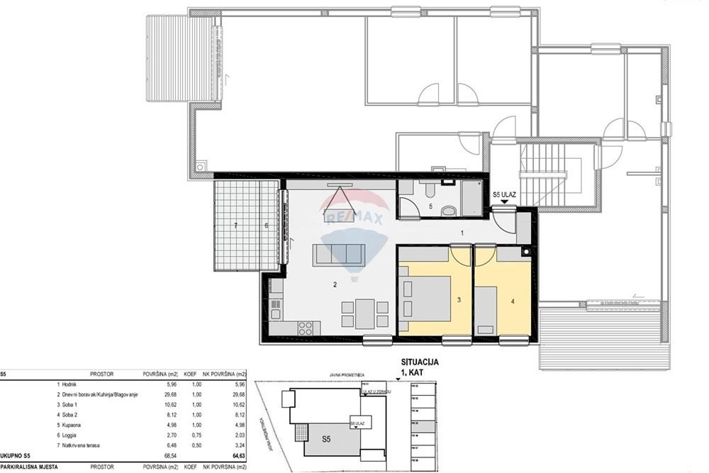
Na prodaju luksuzan stan S3 na prvom katu ukupne površine 41,76 m²!
U prodaji je stan u sklopu ekskluzivnog projekta novogradnje s 8 stambenih jedinica. Stanovi su raspoređeni kroz tri etaže prizemlje, prvi i drugi kat.
Smješteni na jednoj od najpoželjnijih lokacija u Mandrama, ovi elegantni i luksuzni stanovi nude životni prostor vrhunske kvalitete na svega nekoliko koraka od mora. Udaljenost do trgovine, restorana i barova svega nekoliko minuta.
Zgrada je projektirana tako da svaki stan ima otvoren pogled na more.
U izgradnji se koristi:
Aluminijska stolarija Schüco
Keramičke pločice Marazzi u cijeloj zgradi
Slavine viša linija Hansgrohe
Podno grijanje s WiFi upravljanjem
Električne rolete
Klima uređaji u svakoj prostoriji - viša klasa
Priprema za kuhinju i jacuzzi na krovnoj terasi
Videonadzor
Stan se sastoji od jedne spavaće sobe, kuhinje, dnevnog boravka/blagovaonice, kupaonice s podnim grijanjem te natkrivene terase s predivnim pogledom na more.
Stanu pripada jedno parkirno mjesto.
Ovaj prostrani stan nudi savršen spoj komfora i funkcionalnosti.
Mandre su turističko središte Općine Kolan, smješteno na južnoj strani otoka Paga sa prekrasnim pogledom na Silbu i Olib te na otočiće Maun i Škrdu koji obiluju uvalama i prekrasnim plažama. Smještene na samoj obali, Mandre krase 3 kilometra duge šljunčane plaže.
Predviđeni završetak radova i useljenje je do ljeta.
Više informacija na upit.
+385 91 4444 271