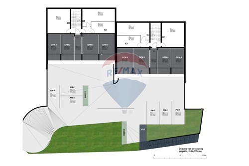
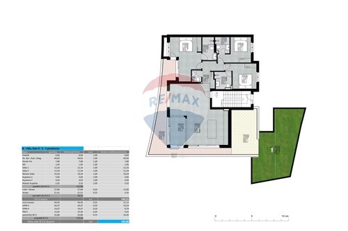
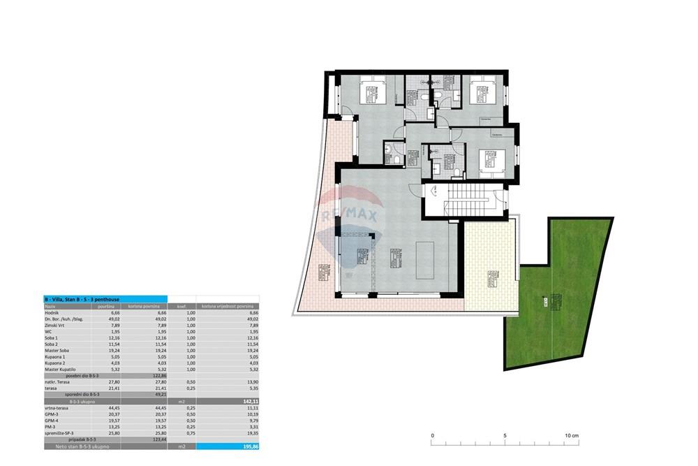
RE/MAX centar nekretnina iz svoje ponude izdvaja 3S+DB penthouse 172,07 m2 s pogledom na more, u Lovranu. Zgrada se nalazi na mirnoj lokaciji, na kraju slijepe ulice, bez buke i prometa, blizu centra, na samo 350 m od mora. Stan se nalazi u novogradnji izgrađenoj 2025. godine, a koja broji sveukupno 6 stanova (dvojna zgrada s 3 stana po ulazu). Svi stanovi u vlasništvu imaju garažna i vanjska parkirna mjesta, pripadajuće prostrane ostave, te vlastite okućnice. Svaki stan u zgradi ima natkriveni balkon te pogled na more. U svim stanovima je podno grijanje na dizalicu topline u čitavom stanu te zidno hlađenje, a stanovi su opremljeni i Smart Home sustavom upravljanja. Stanovi se prodaju po principu "ključ u ruke", sa sanitarijama, bez namještaja. Predmetni penthouse se nalazi na 1.katu ukupne površine 172,07 m2, a sastoji se od: 3 spavaće sobe (svaka sa svojom vlastitom kupaonicom), dodatnog wc-a, dnevnog boravka s kuhinjom i blagovaonom, hodnika i natkrivene terase s pogledom na more. Stan također u vlasništvu ima: 2 garažna parkirna mjesta, 1 vanjsko parkirno mjesto, ostavu, te okućnicu (sveukupna površina navedenih pripadaka je 123,44 m2). U cijenu je uključen PDV, kupac je oslobođen plaćanja poreza na promet nekretnina. Zgrada ima Uporabnu dozvolu, a stanovi su odmah useljivi.